コスモ綱島グランステージ 1階
横浜市鶴見区エリアでの住まいなら、住み心地も快適な「コスモ綱島グランステージ」はいかがでしょうか。バス停まで徒歩3分以内の物件なので通勤に役立ちます。不動産情報をお求めなら吉田ビルディングにご依頼を。こだわりやご要望などあれば、045-573-0333若しくはinfo@ybkk.jpまでお問い合わせ下さい。
ローンシミュレーションこの物件を購入した場合の、月々の支払い価格の一例です。借り入れを保証するものではございません。
- 返済期間
-
- 金利
-
- ボーナス時の増額(1回分)
-
- 借入金額:
-
- 頭金:
-

- 毎月の返済額:
(※元利均等方式 金利5.00%まで ※返済年数5~50年まで入力できます)
(※ボーナスは年2回で計算しています。1000万円まで入力できます)
(※物件購入時、その他諸費用が発生する場合がございます)
担当者のコメント 山田和行 ヤマダカズユキ

- 専有面積100㎡超の永住向きマンション。南に面したワイドバルコニーは開放感があり住みやすさがあります。周辺は平坦地で生活施設が充実した便利なマンションになります。
是非室内ご内覧ください。
info@ybkk.jpからご連絡お待ち申し上げます。吉田ビルディングでは、お客様が希望する条件を豊富に取り扱っております。
物件概要
【中古マンション】 物件番号:86722425 情報更新日:2026年01月31日 次回更新予定日:2026年02月14日| 所在地 | 神奈川県横浜市鶴見区獅子ケ谷1丁目23 | ||
|---|---|---|---|
| 交通 | |||
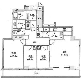
| 間取り/詳細 | 3LDK | ||
| 専有面積/バルコニー面積 | 103.81㎡/19.20㎡ | ルーフバルコニー面積/テラス面積/専用庭面積 | -/-/- |
| 価格 | 2,480万円 | ||
| 管理費 | 18,500円 | ||
| 修繕積立金 | 22,760円 | 修繕積立基金 | - |
| 権利金 | - | 駐車場/月額料金 | 空有/18,000円 |
| 土地の敷金/保証金 | -/- | 借地料/借地期間 | -/- |
| 土地権利 | 所有権 | 国土法届出要否 | 不要 |
| 用途地域 | - | 地勢 | 平坦 |
| 種別/構造 | 中古マンション/鉄筋コンクリート | 向き | 南 |
| 築年月(築年数) | 1990年 6月 (築35年) | ||
| 所在階/階建 | 1階/6階建 地下1階 | 棟総戸数/販売戸数 | -/- |
| 管理組合有無 | 有 | 管理形態 | 管理会社に全部委託 |
| 管理員の勤務形態 | 日勤 | 管理会社 | (株)長谷工コミュニティ |
| 取引態様 | 専任媒介 | 現況 | 居住中 |
| 引渡し | 相談 | 建築確認番号 | - |
| 物件番号 | 86722425 | 取引条件の有効期限 | 2026年02月14日 |
| 設備条件 |
|
||
| 条件(その他) | 自治会費月:200円 | ||
| 取扱会社 |
|
||
※地図上に表示される物件の位置は付近住所に所在することを表すものであり、実際の物件所在地とは異なる場合がございます。



















